for sale Flat/Apartment 55 m² in Empuriabrava (Muga) at 200 meters from the sea


































34 Photos
MUGA PARK Bright apartment with terrace and elevator near the sea
Charming 55 m² apartment with a sunny south-facing terrace offering stunning views of the Aiguamolls and a pleasant side view of the sea. Located just 200 m from the beach of Empuriabrava and close to shops, restaurants, and all amenities.
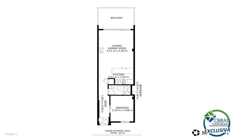
Set in the Muga Park building with elevator, in the peaceful Muga Sector, this bright apartment features a spacious living-dining room with direct access to the terrace, an open-plan kitchen, one double bedroom, and a bathroom with shower.
A great opportunity to enjoy the sun, nature, and proximity to the sea.
Come and see it — you’ll fall in love!
General information:
Distance from the sea: 200 m
Orientation: South
Built Surface: 55 m²
Useful surface: 42 m²
Condition: Used
Preservation: Good condition
Features
1 bedrooms
1 bathrooms
0 w.c
House with 1 floors
Floor 4
Terrace 11 m²
Num. Terraces 1
Total Surf. Terraces 11 m²
Equipment and benefits
Furnished
Heating
Heating type Other
Air Conditioning
Elevator
Views
Sea views
Green Area views
135.000 €
Available
Empuriabrava
(zone of Muga)
55 m²
1
bedrooms
1 bathrooms
Reference:
5998
Registro Certificado energético: 1TB9NL673
Calificación: E
Consumo: 189 kWh/m² Emisiones: 33 Kg CO2/m²
Calificación: E
Consumo: 189 kWh/m² Emisiones: 33 Kg CO2/m²
Want to know more?
Location
Building Muga park