for sale House 62 m² in Empuriabrava (Montseny) at 2000 meters from the sea
31 Photos
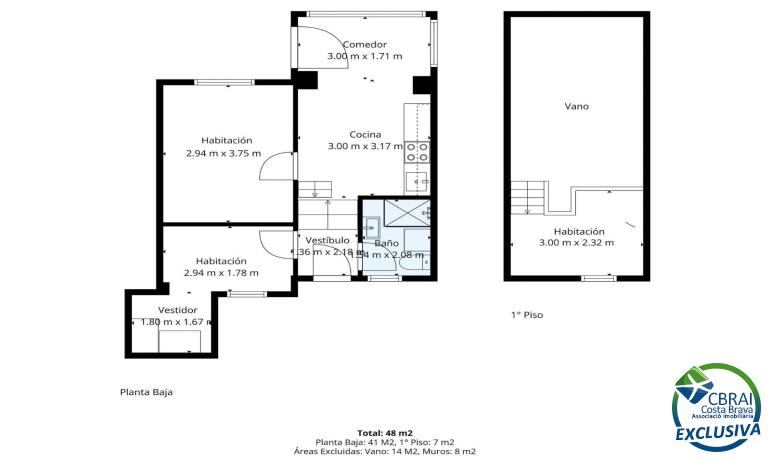
Charming fully renovated house in the residential area of Carlit – Empuriabrava
Located in the quiet and sought-after residential area of Carlit in Empuriabrava, this charming fully renovated house offers comfort, functionality and an excellent east-facing orientation, providing plenty of natural light throughout the day.
The property sits on a 200 m² plot, ideal for enjoying outdoor spaces with privacy and multiple usage possibilities.
The house features two double bedrooms, one of them with a walk-in wardrobe, as well as a mezzanine that can be used as an additional bedroom, office, playroom or leisure area, adapting perfectly to different needs.
Recently renovated using high-quality materials, the property is in excellent condition and ready to move into. It offers a beautiful, functional kitchen with access to a fully glazed covered porch, perfect to enjoy all year round.
The house includes a full bathroom with shower and is equipped with double-glazed windows and reversible air conditioning (heating/cooling) to ensure maximum comfort.
An ideal property as a permanent residence, second home or investment, located in a quiet and well-connected residential area.
- The indicated price does not include taxes or expenses derived from the purchase (ITP or VAT, notary, property registry, and management).
- Real estate brokerage fees are included in the price.
- The property is sold as is. The information provided is indicative and may be subject to errors or unintentional omissions.
General information:
Features
Equipment and benefits
Views
Calificación: E
Consumo: 250 kWh/m² Emisiones: 49 Kg CO2/m²
)





